GHS Kitchen Project

Options & Decisions

Meeting Agenda

1
Wall Ovens - Do we want them?
2
Refrigerator Options
3
Freezer Options
4
Gym Window Curtain
5
Floor Plan Options
6
Future Items to Think About
7
Budget Overview
8
Decision-Making Process

1. Wall Ovens

Do we want wall ovens?

Option: Double Convection Oven

  • Cooktop in counter + double wall oven
  • 38" wide - fits counter depth at 45° angle
  • Corner placement option
  • We have enough power to run them

Cost: ~$11,000 (pre-tax)

Double Ovens

Garland SUME-200 Double Deck Convection Oven

2. Refrigerator Options

Maximum width: 52 inches

Option A: Solid Swinging Doors

Solid Door Refrigerator 2 Solid Door Refrigerator 3
  • Better insulation
  • Lower energy cost
  • More durable

Option B: Glass Sliding Doors

Glass Door Refrigerator
  • See contents without opening
  • Doors don't swing into walkway
  • Easier inventory checks

Budget: $3,391.66

3. Freezer Options

Two smaller freezers OR one double freezer?

Option A: Two Single Freezers

Single Freezer Single Freezer Single Freezer

Option B: One Double Freezer - no image available

Budget: $2,765.15 x 2 = $5,530.30

3. Freezer Placement

Placement Constraints:

Consider:

3. Ice Maker

Atosa YR140-AP-161

  • 142 lb cube ice capacity
  • 23" wide
  • Air cooled
  • 115V power

Budget: $1,892.91

Ice Maker

4. Gym Window Curtain

Are you happy with the curtain for the gym window?
Curtain Curtain Curtain

We are getting some fabric samples.

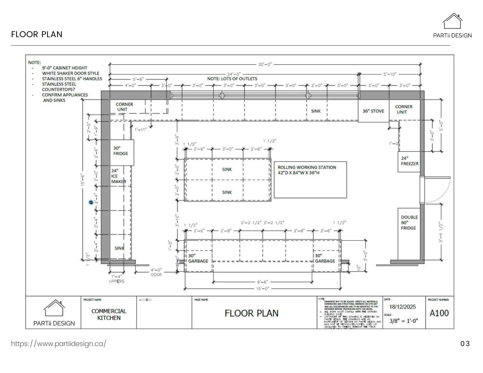
5. Floor Plan Options - Option A: Center Island

PARTii Design Floor Plan

5. Floor Plan Options - Option B: L-Shaped Island

Floor Plan Suggestion
✓ Removable drink counter can be put in doorway ✓ People can work at counter without backs to serving window ✓ Good counter space for dishwashing

5. Floor Plan Options - Option C: Option to hit plumbing

L-Shaped Floor Plan
Note: Counter needs to be over the plumbing

6. Future Items to Think About

7. Budget Overview

ItemCost
Kitchen Cabinets$61,000
Counter Tops (laminate)$4,900
Sliding Barn Doors (2)$4,750
   - 52" Refrigerator $3,391.66
   - Freezers $5,530.30
   - Ice Maker $1,892.91
   - Range $1,500.00
Appliances (subtotal)$12,317
Main Roll-up Door$10,900
Plumbing / Electrical / OtherTBD
Subtotal$93,867
+ Tax (6.5%)$6,101
TOTAL$99,968

* Double oven (~$11,000) not included in current budget

8. Decision-Making Process

How much should we involve everyone in decisions?

Questions for Discussion:

Decisions Needed

Tonight's Decisions:

Next Steps:

Questions?

Thank you!